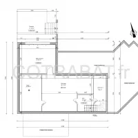
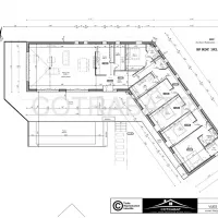
Nos plans 3D de maison

Imaginez-vous dans la maison de vos rêves avec nos plans de maison 3D. Notre maître d'oeuvre à Bordeaux réalise pour vous des plans de maison 3D sur-mesure, selon vos envies, les spécificités du terrain et votre budget.

Vos premiers plans 3D de maison sont offerts. Pour avoir une vision en trois dimensions de votre futur projet de construction de maison sur votre terrain.

 

Réalisez votre projet de construction ou rénovation de maison

Notre équipe de maître d'oeuvre à Bordeaux est à votre écoute pour vous apporter son expertise et ses meilleurs conseils.
Pour mener à bien votre projet de construction ou rénovation de maison individuelle en Gironde, dans les règles de l'art.

Contactez-nous